Direct antwoord op je vragen over deze woning?
Pas het interieur aan naar jouw wensen.
Maak nu een afspraak voor deze woning.
Direct antwoord op je
vragen over deze woning?
Pas het interieur aan naar
jouw wensen.
Maak nu een afspraak
voor deze woning.

Beschrijving

Een zeer riante duurzame woning met meer dan 200m2 woonruimte en dat duurzaam!!

Dat nieuwbouwplan De Buurt in Venhuizen bijzonder is zit hem niet alleen in de fraaie architectuur. Ook de opzet van de wijk is speciaal. De combinatie van nieuw en oud, gestroomlijnd in de landelijk omgeving maken dit een unieke plek om te wonen. Dat de woningen ook nog duurzaam en gasloos zijn, maakt het extra aantrekkelijk om hier een huis te kopen. Klaar voor de toekomst in de breedste zin van het woord.

De bouwwerkzaamheden van de 1e woningen in dit nieuwbouwproject zijn reeds aangevangen, nu mogen wij u deze prachtige 2-onder-1-kapwoning met meer dan 200m2 woonruimte presenteren.

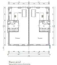
Begane grond
De keuken is tuingericht en beschikt over grote raampartijen en dubbele deuren naar de tuin. Zo wordt de keuken echt een verlengstuk van de woning.

Verdieping
Via de trap in de hal bereikt u de eerste verdieping. Op deze verdieping treft u 4 slaapkamers en de badkamer.

Zolder
Zeer ruime zolderverdieping van circa 50m2. Via de overloop bereikt u twee royale kamers. Wellicht een sportruimte of een kantoor aan huis?

Kenmerken
• 209 m2 woonoppervlak;
• 338 m2 perceeloppervlak;
• 17 m2 vrijstaande houten berging;
• 817 m3 inhoud;
• 2 privé parkeerkeerplekken;
• gelegen aan het lint.

Duurzaamheid
Geen standaard installaties maar echt duurzaam, daarmee zijn de woningen in nieuwbouwproject De Buurt echt onderscheidend. De woningen worden gasloos gebouwd en voorzien van een bodemgebonden warmtepomp. Dit is voor het verwarmen/koelen van de woning en het bereiden van warm tapwater.

De woning wordt hiernaast voorzien van zonnepanelen. Echter wordt niet alle opgewekte stroom van deze panelen meteen gebruikt. Hoe fijn is het dan als u deze stroom kunt bewaren voor een ander moment? Daarom zullen de woning worden uitgerust met een slimme thuisaccu, de Powerbox 15-331. Met deze thuisaccu kunt u stroom vanaf de zonnepanelen opvangen en gebruiken op de momenten dat u wilt. Hoe ideaal is dat?! De accu beschikt over speciale software welke kijkt naar de huidige stroomprijs. U levert dus stroom terug op de momenten dat de stroomprijs het hoogst is en hij laadt de accu op wanneer de stroomprijs laag is. Hiermee is energieopslag de sleutel tot een duurzame en onafhankelijke toekomst.

Tot slot zal elke woning worden voorzien van een regenwaterfabriek. Hierdoor wordt het regenwater gezuiverd zodat het geschikt is voor gebruik van bijvoorbeeld de badkamer, het toilet, de wasmachine en de buitenkraan. Duurzaamheid ten top!

Staat van Oplevering
De woningen worden inclusief badkamer/toilet opgeleverd. Een volledige technische omschrijving kunnen wij u bij interesse doen toekomen.

Tijdslijnen en procedure
Nieuwbouw zonder lange wachttijden. De bouw kan op zeer korte termijn aanvangen, na start bouw bedraagt de gehele bouwtijd circa 9 maanden. De woning zal worden gebouwd door de DWB (De Wit – Besseling) aannemers uit Hem onder de nieuwbouwgarantie van Bouwgarant. Voor de aankoop van de woning worden er twee overeenkomsten aan u voorgelegd. Een koopovereenkomst voor de grond en een aannemingsovereenkomst voor de realisatie van de woning. Bij de notaris zal eerst de grond aan uw worden geleverd, waarna middels de aannemingsovereenkomst met bijbehorende termijnen de woning zal worden gebouwd.

Impressies en verkoopstukken
De technische omschrijving is zo nauwkeurig als mogelijk samengesteld volgens de gegevens en tekeningen van de architect en adviseurs. Een voorbehoud wordt gemaakt ten aanzien van geringe architectonische (o.a. kleurenschema), bouwtechnische en constructieve wijzigingen, alsmede ter attentie van eventuele afwijkingen, die voort kunnen vloeien uit nadere eisen, wensen en goedkeuringen van overheden en/of nutsbedrijven. Indien technisch noodzakelijk mocht blijken, behoudt de aannemer zich het recht voor af te wijken van het in de overeenkomst gestelde, zonder dat deze afbreuk doet aan de kwaliteit. De ingeschreven maten van de bijbehorende tekeningen zijn "circa" maten en hebben geen bewijskracht. De in de verkoopdocumentatie opgenomen artist impressions geven een impressie weer, aan deze artist impressions kunnen geen rechten worden ontleend. De definitieve kleurstelling e.d. kan nog afwijken. De inrichting en eventuele interieursuggesties in de woningplattegronden zijn een voorbeeld van de illustrator en/of architect. Het meubilair is niet inbegrepen.

Vragen over deze woning?

Kenmerken

Algemeen

Soort woning Helft van dubbel
Bouwjaar 2025
Aantal kamers 6

Woningdetails

Bouwjaar 2025
Woon oppervlakte 209
Inhoud woonhuis 817

Overige

Aantal slaapkamers 5
Show with reservation -1

Kenmerken

Algemeen

Soort woning Helft van dubbel
Bouwjaar 2025
Aantal kamers 6

Woningdetails

Bouwjaar 2025
Woon oppervlakte 209
Inhoud woonhuis 817

Overige

Aantal slaapkamers 5
Show with reservation -1

Kan ik dit huis betalen?

Bereken nu
Benieuwd naar jouw maximale hypotheek?

Aangeboden door:

Optima Makelaardij

Aangeboden door:

Optima Makelaardij